裝配是產品整個生命周期中一個重要的環節,產品的可裝配性及裝配質量將直接影響著產品的成本和使用性能。在現代制造中,裝配時間約占成品制造時問的50%以上。同時產品的裝配依靠的手工勞動量大且費用高并且和裝配人員的熟練程度都有直接關系。所以應用數字化手段來提高裝配生產率和可靠性具有重要意義。
本項目的研究項目的主要目標是應用最新數字化、信息化技術,結合企業的具體情況和發展需求,改進工藝設計和管理模式。使得工藝技術人員從繁瑣的重復性工作中解放出來,投入更多精力用于工藝改進和技術創新;使得車問操作明確、規范,減少更改和返工,穩定質量;使得生產管理獲取實時、準確數據,實現精細計劃和科學管理。
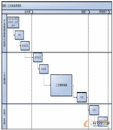
一、裝配工藝業務原狀態
裝配業務是制造類企業的核心業務,其工藝將直接影響到產品質量。由于飛機發動機產品結構復雜,使用要求嚴格,其制造工藝也因其復雜的結構和嚴格的要求而十分復雜。下圖描述了目前裝配工藝業務的整體流程。從設計部門提供設計數據到工藝編制、審批以及歸檔發放。

圖1 現階段裝配工藝業務流程
圖中指出工藝編制主要以查閱二維裝配圖紙、編寫工藝文檔、手工統計清單方式完成,工作量非常大,對工藝人員編制工藝提出很高要求,同時也對使用工藝文件生產的操作人員提出了很高的要求。對于新工藝人員或操作人員在短時間內接收工作難度很大。因此需要在三維設計的前提下,裝配工藝編制需要從理解二維圖紙、編制文檔方式中解放出來,采用直觀的三維結構化編制方式,提高工藝工作效率,保證產品裝配質量。
二、裝配技術管理的需求分析
(一)改善工藝設計效率,提高正確率
通過創建面向工人的操作卡,規范和明確操作過程、穩定質量,減少對人員經驗的依賴,減少技術人員現場協調和指導。
實現方式:
1.在三維裝配環境中基于裝配BOM進行工藝編制;
2.方便地獲取取相關聯的裝配過程圖示或模型;
3.自動輸出工藝規程和統計報表。
改進優勢:
1.減少閱讀和分析二維裝配圖時間,創建三維操作卡片減少工人讀圖時間;
2.在三維裝配環境下改善了裝配工藝的可行性和準確率;
3.減少各種匯總報表的時間,保證了數據的實時性和正確性。
(二)整合工藝技術資源
通過統一調度裝配廠車間工藝技術人員、有效利用、平衡作,消除車間壁壘。
實現方式:
1.工藝人員以唯一用戶名登錄,在系統中接受任務,在統一界面環境中工作,數據在數據庫中管理和共享;
2.系統以用戶和角色進行管理,與物理位置無關;
3.結構化工藝支持多人同步、協同工作。
改進優勢:
1.有效利用工藝技術資源,平衡工作量;
2.在較大范圍內實現知識重用、經驗共享、技術交流;
3.方便車間之間調配生產任務,平衡生產,有效利用生產資源。
(三)改進工藝規程的適用性和可視性
通過創建面向工人的操作卡,規范和明確操作過程、穩定質量,減少對人為經驗的依賴,減少技術人員現場協調和指導。
實現方式
1.制定對應工步的操作卡格式使內容規范;
2.用圖形、圖片、模型、動畫等多種直觀、便捷的方式表示操作過程;
3.在操作卡應用成熟時,優化工藝規程內容和格式。最終實現工藝規程針對工序和計劃、操作卡針對工步和操作。
改進優勢
1.改變純文字工藝表述方式,提供可視化的三維工藝信息表達方式,方便操作人員理解;
2.從長期和總體上減少工藝人員工作量,改進生產效率和質量;
(四)統一裝配、機加工藝標準
改變局限于紙質和表格的裝配機加工藝不統一的方式,建立適合于電子化和信息化,面向工藝、工序對象的結構化工藝編制方式。
實現方式
1.在結構化工藝中定制裝配和機加兩種工序類型,在一個工藝中可以包含兩種工序類型,但每種工序類型中值描述裝配或機加的操作;
2.定義不同的數據輸入格式和內容,根據不同工序的需求輸入相應內容;
3.系統自動從各工序中獲取信息生成所需統計報表;
4.工人只打印本工序規程或作業指導書進行操作。
改進優勢
1.統一和規范裝配工藝設計過程和規程輸出格式。
2.改變原來機加規范格式不能滿足裝配工藝的需求,致使輔料、工藝件等信息在備注中隨意填寫,造成計算機系統處理不便。
三、數字化裝配工藝實現的目標
裝配工藝設計是連接產品設計和裝配生產現場的關鍵環節。實現數字化裝配工藝設計,就是要有效連接數字化產品設計和裝配生產現場的制造執行,即充分繼承和利用數字化產品設計信息,通過創造性的工藝設計,為裝配生產現場的制造執行提供必要和準確的工藝技術信息。
(一)更方便地指導現場工人的使用:穩定質量,減少人為因素影響
1.不同部門對工藝有不同的需求,針對不同的要求為不同部門提供工藝信息。
2.通過裝配作業指導書細化操作步驟,標準化操作步驟,為操作者提供更為直觀的可視化作業指導。
(二)方便裝配MES的管理:實現精細化科學管理
1.結構化工藝有效支持與MES的集成。
2.通過集成提供裝配MES必要的數據,MES為現場生產提供更為精確的服務。
3.三維結構化裝配工藝設計:提高工藝設計可行性和編制效率
1)基于三維和可視化的技術的作業指導書,提高裝配工藝設計準確性;
2)基于裝配BOM的裝配工藝設計,提高工藝編制效率和準確性;
3)基于工藝知識庫、資源庫,提高工藝編制效率;
4)通過電子化的審批和更改管理,提高工藝編制效率;
5)通過后續的裝配工藝仿真,提高裝配工藝設計準確性;
四、裝配工藝數字化變革
先進的系統需要有配套的管理流程才能發揮出起作用,加速企業創新,提升企業競爭力。在上述新的業務流程中主要包含了三個方面的變革,即工藝流程的變革、工藝文件的變革以及電子化。每一種變革都會給工藝規劃和應用帶來更高的效率。
(一)工藝流程的變革
流程的變革主要包括兩個方面:
1.并行工程:在工藝路線規劃完成并進行評審后,工裝派工、非標準設備派工和細化工藝規程可并行開展,縮短等待時間以及工裝、非標準設備設計完成后工藝的更改。
2.漸進明細:派工提前后工藝人員將有更多的時間細化裝配操作步驟,驗證操作以避免錯誤。并且可根據試制和批產不同的階段進行逐步細化。試制一定數量后工藝規程的內容將大大豐富,正確性將大大提高。
(二)工藝規程的變革
為了真正有效利用結構化裝配工藝設計,借鑒國內外最優的業務實踐,徹底改變裝配工藝技術科和裝配現場的管理模式,最終提高裝配工藝編制的效率和準確性,并最大化發揮工藝對裝配現場的指導作用,在引入作業指導書的同時,對傳統的裝配工藝規程進行改造。
原有的工藝規程根據不同部門對工藝的使用需求可以分為兩部分,即概要工藝規程和詳細裝配作業指導書。
1.概要工藝規程由裝配工藝規程簡化成為工藝路線規劃,主要包括工藝路線、各種目錄,主要用于調度部門指定生產計劃,領用零件、資源使用。一個或多個部件編制一本。主要用于為各管理部門和生產現場提供管理和生產作業計劃所必要的信息;針對裝配BOM中的每個組件,將建立一本工藝規程。
2.細化裝配工藝規程即裝配作業指導書主要包括工步的流程圖、每個工步標準化的圖文并茂的詳細操作步驟、使用的資源清單等信息。每一個工序生成一本,直接供操作人員使用,直觀清晰的向操作人員說明裝配操作過程,真正成為現場工人現場操作的唯一指導。
(三)電子化管理與紙質管理的業務有機結合
首先要實現裝配工藝業務的電子化管理,并為后續生產現場的無紙化管理奠定基礎。因此要盡量遵循電子化管理的特點,尤其是工藝規程和各種匯總目錄的更改方面。但在目前業務現狀下,紙質管理模式在其他管理部門和生產現場不可能立即取消。為了保障項目的可行性,必須要實現電子化管理與紙質管理的業務有機結合:
1.在裝配工藝設計系統內,為長遠考慮,盡量遵照電子化管理的方式與手段,例如:將只存在版本管理和換版更改,始終輸出最新的最準確的報表,不存在換頁和劃改的方式;
2.在與外部管理部門和生產現場的紙質提供資料和更改資料時,直接利用系統輸出的最新、準確的報表和更改單,由人工選擇合理的紙質的換版、換頁和劃改方式和打印的內容;
3.通過與裝配MES系統和ERP系統的集成,逐步簡化和取消相應的各種報表和統計目錄,以減少電子化管理與紙質管理不一致而給工藝員增加的不必要的工作。
(四)變革收益
1.實現提前派工,縮短生產準備周期;
2.簡化試制工藝規程,縮短生產準備周期;
3.工藝員在試制生產中,指導生產現場、獲取實際工藝經驗,保證批產工藝的正確性;
4.批產工藝符合裝配實際,更加直觀明確,穩定了產品質量:
5.直觀明確的作業指導書,減少工藝員現場協調時間;
6.電子化管理實現設計、工藝、生產數據統一有效的管理;
實現管理數據共享、歷史追溯;減少人工維護和紙張使用,節約成本;
五、結束語
數字化裝配技術的研究必須與工藝技術、實驗技術、現代管理等技術的研究深入結合,實現生產模式和方法的轉變。不過數字化技術的實施具有復雜性包括技術實施與人文等因素,文化的不同也削弱了人們認知度,使得相關人員無法在傳統的觀念中釋放出去,無法吸收先進的裝配理念,不過,如今我國行業內航空制造行業對數字化裝配技術都有著非常迫切的需求,相信隨著數字化裝配技術向著實用化方向的發展,其將發揮更加重要的作用。
轉載請注明出處:拓步ERP資訊網http://www.shjqjggc.cn/
本文標題:PDM系統數字化裝配工藝管理技術研究
























