0 引言
工藝設計是機械制造過程中技術準備的一項重要內容,是產品設計與制造的橋梁,也是連接產品設計與生產管理的重要紐帶,具有很強的實踐性特征。隨著國內和國際市場對產品需求的多樣性,生產規模日益向中小批量發展,這就要求新產品開發周期要盡量縮短和工藝設計效率要高,以適應市場需求。在這樣一種背景下,隨著計算機輔助技術的發展,建立企業的CAPP(Computer Aided Process Planning)系統已經成為當前機械行業(尤其是中小企業)的迫切需要。它不僅可以提高工藝規程設計效率和設計質量,縮短技術準備周期,把工藝人員從繁瑣、重復的勞動中解放出來,而且可以保證工藝設計的一致性和規范化,有利于推進工藝的標準化。同時為企業信息化(如PDM、ERP等)創造了條件。
目前,CAPP系統類型,主要有派生式系統、創成式系統和綜合式系統。派生式CAPP系統可分為基于成組技術的CAPP系統和基于特征的CAPP系統;創成式CAPP系統分為基于傳統過程性結構與決策形式的系統、基于知識的CAPP系統、CAPP工具系統和基于神經元網絡的CAPP系統;綜合式系統是派生式和創成式相結合的CAPP系統,也是基于實例和知識的CAPP綜合式系統。
自上世紀80年代以來,CAPP得到了長足的發展,國內許多企業與高等院校、研究所合作研制了眾多的CAPP系統。由于各企業的產品特點、企業資源情況、技術條件、工藝習慣等方面的差異以及工藝設計的復雜性,使創成型CAPP系統的構建非常復雜,實用性也比較差。根據某鍛造企業的具體需求,本系統以實用性為開發目的,采用派生式CAPP系統,結合人機交互方式,研究繪制工序圖的方法,從而完成鍛件的工藝設計。
1 系統原理及架構
1.1 系統原理
按照成組技術原理,將結構相似的零件分類歸族,每一族制訂一典型工藝模板。典型工藝模板是根據企業現有設備及工藝經驗的基礎上制定的,它包含了本族零件加工的所有典型工序,并存入工藝數據庫中。當需要設計某一零件的工藝時,識別并調出相應零件族的典型工藝。根據零件的設計要求,將零件的特征與典型工藝模板進行對比,添加或刪除特定的工序,即可得到適合該零件的工藝規程。在工序設計時,完成工序圖的繪制。
1.2 系統的架構
本系統適合于10~50名工藝人員操作訪問。采用SQL Server 2000作為底層的數據庫平臺,通過ODBC進行連接訪問,實現數據共享;在Windows環境下,采用面向對象的高級語言Visual Basic 6.0進行開發,系統界面友好,具有很好的可擴展性。
系統的流程圖如圖1所示。

圖1 CAPP系統的流程圖
2 系統關鍵技術
2.1 工藝數據庫
對于工藝數據的保存,早期CAPP系統常采用數據文件,現在大多采用數據庫來進行存儲。
工藝數據庫是CAPP系統的基礎平臺,CAPP系統運行時需要調用大量相關聯的工藝數據。目前,典型的數據庫有Access、SQL Server、Oracle等。考慮到企業聯機事務處理的需要,系統采用SQL SERVER 2000來存儲工藝數據。
在SQL Server 2000上,建立四類數據庫:用戶信息數據庫;典型工藝數據庫;工藝資源數據庫及鍛件形狀參數數據庫。
1)用戶信息數據庫:用戶登錄、角色劃分及每個角色的權限,以保護系統及系統數據的安全。
2)典型工藝數據庫:將某鍛造企業的產品分為十三大類,根據每一類產品的結構特征及加工工藝特點,制定其典型工藝模板,并存入數據庫,以備調用。
3)工藝資源數據庫:工藝設計過程中涉及到大量的數據,有靜態數據和動態數據。此處主要是靜態數據,包含機床、刀具、夾具、零件名稱、零件材料及零件工作令號等,以便于工藝設計時查詢,提高工藝設計效率。
4)鍛件形狀參數數據庫:對于企業的每一類產品,通過研究零件的圖形單元,提取出結構化參數,完成形狀參數數據庫。
2.2 工序圖
工序圖是工藝設計的圖形表達方式,在工序圖上不僅要求顯示零件在本工序加工完成之后的基本形狀,而且還要清楚地表明本工序所有加工面的尺寸、精度、粗糙度、形位公差及其他特殊要求,并指明本工序加工時的定位基準面、夾緊力的位置等內容。
工序圖的繪制是企業實施CAPP系統的一個難題。傳統手工繪制工序圖效率低、工作繁瑣和標準化程度差。為提高工藝設計的效率和質量,實現工藝設計的標準化和現代化,近年來,研究人員進行了大量的研究和實踐。目前常用的CAPP系統普遍采用OLE方式調用CAD圖形文件。要完成一個工藝簡圖的繪制,需要在CAD和CAPP系統中來回切換,使用相當不便,且容易出錯。有些學者研究了在建立各工序加工余量數據庫的基礎上,根據尺寸反推原理,由零件尺寸逐步得到各工序的工序尺寸,直至毛坯。
本系統根據鍛件的結構特點,采用兩種方式實現工序圖的繪制。
1)參數化繪圖
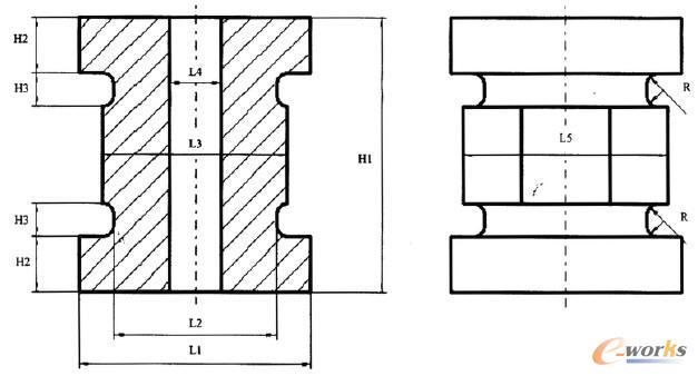
根據參數化繪圖的原理,將零件的圖形要素分離成圖素單元。針對某種圖素單元,編寫一個繪圖子程序,這些子程序在一起就形成了CAPP工序圖自動生成模塊?紤]到某鍛造公司現有的產品結構相對比較簡單,可采用參數化繪圖。繪圖時,通過零件的工作令號,調用零件形狀參數數據庫,獲取鍛件有關形狀參數及相對位置,通過圖形生成模塊,即可完成工序圖的繪制。也可以在CAPP運行界面上直接輸入零件形狀參數,進行繪圖。圖2為套管四通零件形狀參數圖,表1為套管四通形狀參數數據庫,圖3為套管四通形狀參數輸入界面。

圖2 套管四通形狀參數
表1 套管四通形狀特征參數數據庫


圖3 套管四通形狀參數輸入界面
2)開發專用的繪圖工具(draw.Ocx)
在CAPP系統中,通過VB中調用Windows API函數和VB自身提供的繪圖方法,開發出具有一定繪圖功能的工具。利用它,可以實現工序圖的繪制、圖形的縮放、復制、粘貼及工序尺寸的標注等功能,使CAPP系統不依賴任何CAD平臺就可完成工序圖的繪制,可以大大縮減開發進度和提高程序性能。
在VisuaIBasic6.0環境下,可通過圖形控件(如Line、Circle、Shape等)繪圖;也可利用API繪圖。API的全稱是Application Programming Interface,可稱為“應用程序編程接口”。API是Windows操作系統自帶的一套功能強大的函數集,它直接面對操作系統的底層,可以完成一些VB不能實現的功能,且執行效率高。在Visual Basic 6.0程序中調用API函數時,必須進行API函數聲明。
Ocx控件即嵌入用戶控件,是一種可以在Windows系統中創建使用的特殊用途的程序。在CAPP程序中使用自制的Ocx控件,實現工序圖的繪制、尺寸標注等功能。利用繪圖控件Ocx,可以簡化程序的代碼,起到程序優化的作用。Ocx控件可以通過ActiveX控件中UserControl對象創建。
在工藝設計過程中,對于新產品或數據庫中無參數數據庫的鍛件工序圖,可以使用開發的繪圖環境,直接繪制工序圖,標注相關的技術要求等。
3 實例
某鍛造股份有限公司現有13類產品,主要有閥體、套管頭、套管四通等,F以套管四通零件為例介紹CAPP系統的功能。
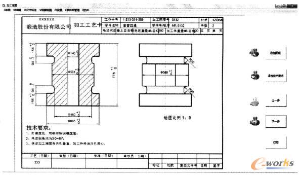
工藝卡片的內容可分為表頭、表尾和中間三部分。表頭部分涉及零件的基本信息,如零件工作令號、材料牌號、毛坯類型、零件名稱、毛坯外形尺寸等內容;表尾部分涉及工藝設計人員、會簽人員、日期等;中間部分為零件加工工藝或工序圖。
圖4為CAPP系統生成的套管四通零件的工藝卡片;圖5為CAPP系統生成的套管四通零件的工序卡片。

圖4 套管四通工藝卡片

圖5 套管四通工序卡片
工藝文件生成后可以保存,也可以輸出打印。
4 結束語
本文介紹了某鍛造公司產品的CAPP系統的設計,并以套管四通零件為例說明了工藝文件生成的過程。系統以數據庫為基礎,使用VB語言成功開發了鍛件CAPP系統,系統界面友好,操作方便,生成的工藝卡片符合規范。該系統已在南京某鍛造公司投入使用,較好地滿足該廠產品的工藝設計要求,大大提高了工藝設計的效率,規范了工藝文件,減輕了工藝設計人員的勞動強度,提高了企業的競爭力。
轉載請注明出處:拓步ERP資訊網http://www.shjqjggc.cn/
本文標題:鍛件實用CAPP系統的研究與開發
























